COLLEGE JEAN MOULIN à VERRIERE LE BUISSON

Maître d’ouvrage / Département d’Essonne
Maître d'oeuvre / LAPS Architecture
Calendrier / Livraison prévue 2025
Surface SHON / 1 200 m² 

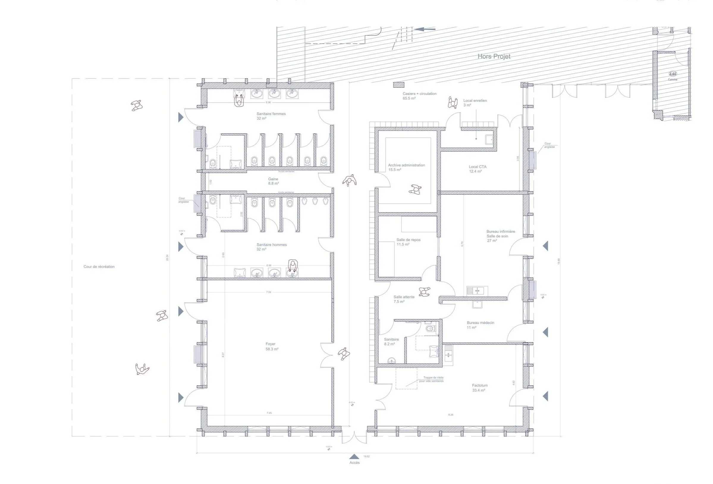
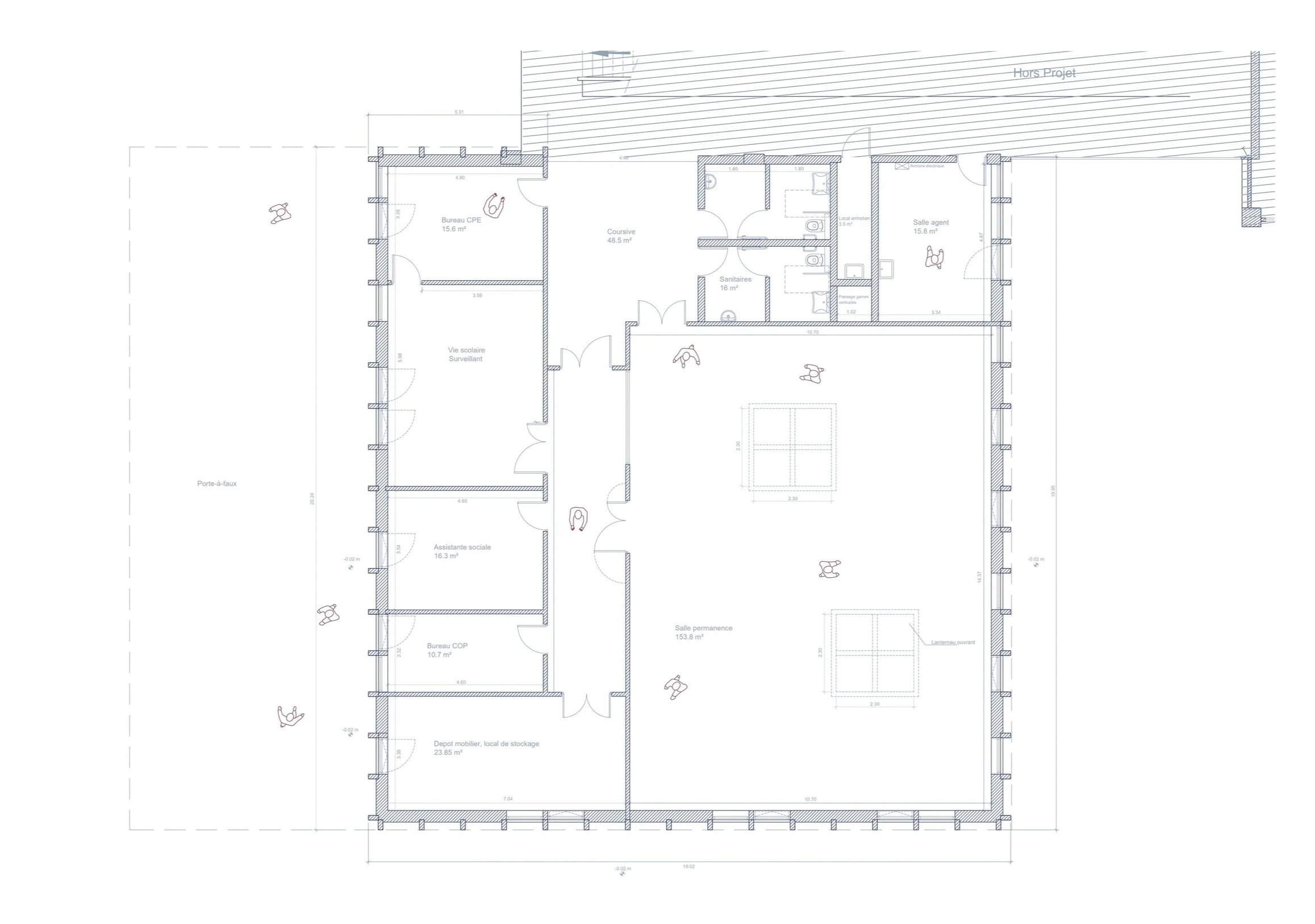
Le projet concerne la reconstruction du bâtiment D du collège Jean Moulin, avec la démolition d’un ancien bâtiment et l’aménagement de la cour de récréation. Inspirée par la géométrie des bâtiments existants, la nouvelle structure en bois massif combine design et durabilité. Les colonnes en Douglas, les planchers et cloisons en CLT, ainsi que la charpente en bois, restent apparents pour créer une atmosphère chaleureuse. La façade, rythmée par des lames de bois, offre une composition dynamique. La toiture en porte-à-faux intègre un préau pour abriter la cour. Les menuiseries bois-aluminium allient robustesse et pérennité. Enfin, le confort acoustique et l’utilisation de bois naturel renforcent un environnement propice à l’apprentissage.


DOCUMENTS GRAPHIQUES