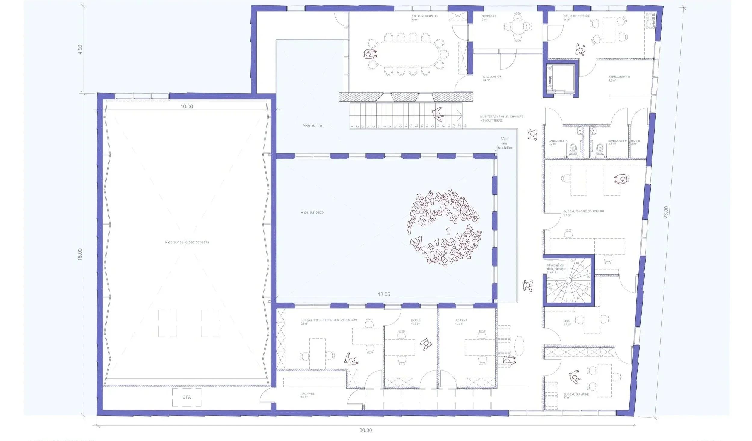
NOUVELLE MAIRIE DE LA VILLE DE ROUSIES

Maître d’ouvrage / Mairie de Rousies
Maître d'oeuvre / LAPS Architecture et Alia Bengana
Calendrier / Livraison prévue 2025
Surface SHON / 1.000 m² + 2.500 m² espaces extérieurs 


DOcuments GRAPHIQUEs

Chantier participatif